
強輝嘉興旗艦店
坐落在江南文化的發源地——浙江嘉興
一城一景,一城一異
每個城市孕育著不同的、
但同樣燦爛的文化
嘉興店帶著強輝品牌不變的品質和服務
為本地建陶市場注入更加多元的文化因子
演繹生活的萬種可能

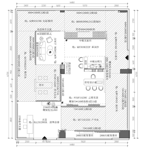
▲嘉興店平面布置圖
Store Information
門店名稱:強輝浙江嘉興旗艦店
設計面積:100㎡
完成時間:2023年4月
設計團隊:強輝總部設計部
門店地點:浙江省嘉興市南湖區建材陶瓷市場139號
門店介紹:強輝嘉興旗艦店,設計師巧妙地植入適當的色彩和光感,以用戶體驗為導向,向來者徐徐展開一個個有趣又有品的格調空間。變幻的色彩所帶來的感官變化,正如生活中美麗的意外,帶來無限驚喜。
FACADE
外立面
外立面采用艾特思巖板系列文化裝飾
個性鮮明,文化效果突出
可以更有效地抓住過客的眼球
進入店內一探究竟


LOBBY
大堂展示區
大堂空間的設計是開放和流動的
沒有明確的邊界
卻隱藏著精心設定的交錯關系
進門大堂背景墻設置為形象墻
放置品牌LOGO,大氣吸睛


LIVING ROOM
客廳
客廳空間選用了800×2600mm的大規格巖板做背景墻
精致更具有高級感
地面采用強輝晶曜系列云灰石(QJW715829E)產品
水墨灰紋理和場景局部的朱砂紅交相呼應
整體空間都變得鮮活明亮起來


MATERIAL SELECTION AREA
選材區



嘉興旗艦店設計中
選材區與樣板間區域呈凹凸形狀
選材區半包圍樣板間
回字形動線沿著大堂左右兩邊往里走
貫穿全店


選材區域整體寬敞明亮
布局規整有序
每個空間里都有獨特的空間氛圍
讓產品與空間完整地結合在一起



強輝精工瓷磚
用創意設計為質感空間加冕
強輝嘉興旗艦店
期待您的光臨











