
奶油風一種底飽和度的配色風格,給人一種甜蜜溫馨的感受。
本次驪住全屋定制案例為大家帶來就是一套具有復古輕法式與奶油色調相碰撞下的73m²純色奶油風,溫柔又浪漫的氛圍,讓人感到放松和舒適。
玄關


玄關緊鄰餐廳,整個空間以純凈的白色做基底,設計中將驪住玄關柜與驪住餐邊柜做結合式整體設計,清雅的淺灰色柜體搭配純凈的漆白色做套色設計,視感清爽而柔和。
根據使用需要將驪住定制柜做多元化設計,展示性收納、隱蔽性收納開放性收納亦或是冰箱也有了合適的位置。
空間產品信息:
玄關門:驪住杰斯塔T系列P03款 黑茶色
收納:驪住定制收納 淺灰色+漆白色
餐廳


餐廳與廚房間,選用更為節省空間的驪住木門可折疊式隔斷門,門扇可折疊收放在一側,大開口方便進出。驪住格子窗式的門扇,視覺上也更顯時尚、明亮、通透。
空間產品信息:
廚房門:驪住康扉驪系列隔斷門LGD款 漆白色
客廳


驪住全屋定制客廳的設計中帶有一點復古的輕法式元素,弧形的門廊、窗廊以及電視背景墻等都弱化著空間的棱角感,增強著空間的綿柔效果,給人一種輕柔的視覺感受。
不過分強調自然花紋和木皮漸變色調的驪住洗柿核桃木色地板,襯托著空間的溫暖、沉穩的氛圍。
空間產品信息:
地板:驪住日本原裝進口地板 洗柿核桃木色
電視柜:驪住定制電視柜 淺灰色
陽臺

將客廳與陽臺打通,陽臺側面狹小的空間也不能浪費,驪住定制一套精巧的通頂式收納柜,將洗衣機、洗護用品等都收納進去,增大收納空間的同時,視感上也更為美觀、整潔。
空間產品信息:
收納:驪住定制收納柜 淺灰色
主臥


一進入臥室,便可感受到空間的溫馨感。
驪住漆白色衣柜門中加入鋁合金玻璃門,美觀、時尚。床頭背景墻中融入具有鮮亮氣質的淺粉色,使空間增加了一份自然的層次感與柔和。
空間產品信息:
衣柜:驪住定制衣柜 漆白色
室內門:驪住康扉驪系列 BFA款 漆白色
兒童房


兒童房的面積雖然不大,但在有限的空間中定制一套驪住多功能收納柜,驪住定制收納將平板式柜門與開放式收納相結合,充分實現衣物、書籍、物品等的收納,讓空間也顯得整潔。同時,也可以讓孩子從小就培養分類收納的習慣。
空間產品信息:
衣柜:驪住定制衣柜 淺灰色+漆白色
書房


書房的設計凸顯簡潔明亮的特點。驪住定制收納書柜以簡單不失時尚的隔板形式進行設計,根據收納習慣與物品的不同,設置不同層高,實現個性收納需求。
同時,依墻定制驪住一體式書桌與書柜,舒適、寬敞的學習桌面很適合孩子與家長共同學習、工作的氛圍。
空間產品信息:
收納柜:驪住定制收納柜 自然橡木色
書桌書柜:驪住定制收納 淺灰色+自然橡木色
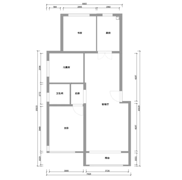
案例戶型圖















