實戰記錄|是藥三分苦,成長必陣痛——David Chang評委十間坊真實點評
183位十間坊參賽者歷經2016十間坊實戰賽11.18-5.31報名,通過組委會資料審核海選之后,入圍和入選的設計師享有繼續提交項目PPT,以期獲得評委親自一對一指導的機會,你們的熱情參與、全力付出和收獲成長讓我們堅信大賽這一實戰平臺對全國設計師所作的努力值得!你們所做的點滴組委會感同身受,并一一匯報至國際評審團各賽區評委導師和大賽發起人廖瑋女士!
同步,4月16-17日西南賽區邀請施路遠評委分別在四川瀘州和宜賓現場工地實勘和圖紙指導;5月16日華東賽區邀請何武賢評委、孫洪濤導師抵達浙江湖州和長興實戰賽現場;6月23日華東賽區二區江蘇邀請邱春瑞評委、施旭東導師南京現場指導。
華中賽區特邀David Chang評委指導,遺憾今年華中賽區因故沒能落地實戰賽實勘,賽區選手們失去了一次與評委面對面深度成長的機會,對有的人來說這個機會此生錯過。當然機會留給有準備的人,6月27-30日組委會組織北京游學,一并開展華中賽區初評工作,湖北武漢張莉自主報名參加游學,28日上午與評委面對面圖紙指導,深度體驗。
5月31日報名海選結束,組委會即刻組織評審,邀請評委對參賽項目進行了初評打分和意見批復。David Chang評委的華中賽區評審結果,最終得出賽區最高分83分,最低分55分,平均分70分,評審嚴苛異常、選手面臨的調整嚴峻異常。
評委名片 | David Chang

戴維國際設計創始人
IDC加拿大室內設計協會成員
RID加拿大國家注冊室內建筑設計師
IIDA國際室內設計師協會成員
NCIDQ美國及加拿大注冊室內建筑設計師
圖紙指導十二分鐘
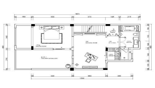
參賽者檔案 湖北 武漢 |蘊能裝飾 張莉 |樓盤名稱:碧桂園生態城| 面積:276平米


△參賽者張莉參加北京游學,David Chang 評委圖紙指導
David Chang評委的點評:平面布局還可以,風格定位為純美式,但是概念圖片里主臥空間,客餐廳為托斯卡納風格,接近鄉村、田園風格。其實很多業主對風格定位并不清晰,以前曾碰到一個業主,他說喜歡現代的風格,結果他心里真正喜歡的是傳統的表現和元素東西,在這個層面上,是業主表達有錯了,我們有責任引導他,風格上真的要重新考慮,而且還要考慮比例問題。

△客餐廳意向圖

△主臥空間意向圖
遠程批復
參賽者檔案 江西 南昌 |意大利M&Z邁致設計 梅皓|樓盤名稱:保利香檳 | 面積: 490平米

David Chang評委的點評:平面能力,分析和組織能力很好。表現出來選手所考慮的布局分區以及風格都比較成熟。建議在三層的主衛增加面積增加淋浴間,并增添這樣豪華感立刻就出來了。

△三層布局說明

△三層效果圖
參賽者檔案 江西 南昌 |東筑設計工坊 劉陳|樓盤名稱:南昌萊蒙都會| 面積: 138平米

David Chang評委的點評:效果圖表現非常好,平面布局算清晰,功能考慮周全。

△平面方案與細節

△客廳效果圖
參賽者檔案 江西 南昌 |東筑設計 章小燕 |樓盤名稱:中海朝陽郡| 面積:380平米

David Chang評委的點評:平面布局比較精細,表現較為細致。歐式古典的材料運用和細節表現的很不錯,可以看出有一定的品味。整體表現效果圖比概念要好,客廳和主臥的感覺是對的,但是餐廳和衛生間表現弱了些。

△客廳效果圖
參賽者檔案 江西 南昌 |時光空間設計 廖志明|樓盤名稱:意大利莊園| 面積:800 平米

David Chang評委的點評:概念表達一致,統一性很好。在這么大的空間沒有中西廚的設置,平面布局可以再做調整,當然業主沒有西式生活習慣另行考慮。長輩房應考慮長者需求,尤其是衛生間,要考慮未來的無障礙設施。整體的主臥區域空間夠大,應該再做更細致的規劃。

參賽者檔案 江西 南昌 |叢一樓裝飾 江楠|樓盤名稱:正榮譽品|面積: 400平米

David Chang評委的點評:平面布局表現可以,主衛有升級空間;風格定位為純色浪漫,但是概念表現為歐式,應該更有特色一點;軟裝表現可以再加強。

△客廳餐廳茶區效果圖
參賽者檔案 江西 南昌 |康之居 葉惠明 |樓盤名稱:聯泰棕櫚莊園 | 面積:415平米

David Chang評委的點評:分析和組織能力不錯。需提升軟裝的品味,讓整體感覺更加優雅一點。

△軟裝及材料意向
參賽者檔案 江西 南昌 | 愛維空間設計 陳娟|樓盤名稱:天沐君湖 | 面積: 180平米

David Chang評委的點評:效果圖制作細膩。三層主臥衣帽間應再增強功能,以400平米的面積來說衣帽間太小。隔門的隔音效果不好,應做調整。風格定位為簡約美式,但是效果圖表現與定位不符,木色太重,太過復雜。

△三樓整改結構圖

△一樓客廳效果圖
參賽者檔案 江西 南昌 |方塊空間 萬志祥&馮余爽 |樓盤名稱:錦繡春天 | 面積: 168平米

David Chang評委的點評:功能布局考慮比較周到。風格定位為都市美式,應以紐約、曼哈頓給人的現代都市感覺,目前的效果圖表現偏簡歐風格。

△平面方案與細節

△客廳效果圖
參賽者檔案 江西 南昌 |龍發裝飾 樊秀|樓盤名稱:國貿陽光 | 面積: 145平米

David Chang評委的點評:整體風格定位和表達的是符合的,但是要注意顏色的運用,不要太老氣,整體偏黃,線條,紋路,紋樣太過復雜。

△客廳效果圖
參賽者檔案 湖南 湘潭 |平恒裝飾 徐強 |樓盤名稱:碧桂園生態城| 面積:350平米

David Chang評委的點評:風格定位為有國際范的東方意境,但是從概念上看到的比較混亂,大部分是現代風格的表現,體現不出東方意境以及國際范的感覺。

△一樓設計意向參考圖
參賽者檔案 江西 南昌 |觀瀾視界 陶潞丹|樓盤名稱:豐和新城 | 面積:300平米

David Chang評委的點評:整體風格掌握還算適宜。所提供的平面來看整體結構應該屬于框架結構,目前平面布局只屬一般,應有改善空間?梢愿纳泣c綴部份的石材,尤其是樓梯部分,應和整體空間連貫。踢腳的比例和造型過于復雜,可以簡化些,要注意比例。

△玄關效果圖
參賽者檔案 江西 南昌 |東尚設計 汪淮|樓盤名稱:水榭灣 | 面積: 300平米

David Chang評委的點評:因為只有手繪沒有平面,無法看見整體布局,整體風格還算統一。

△風格意向
參賽者檔案 江西 南昌 |康之居 王偉|樓盤名稱:新力帝泊灣 | 面積: 234平米

David Chang評委的點評:主臥、主浴和衣帽間空間布局不太理想,建議重新思考。雖然風格定位是簡約美式的,但是看到的整體風格偏向田園風格。

△客廳效果圖
參賽者檔案 江西 南昌 |藝航裝飾 邵野|樓盤名稱:天沐君湖 | 面積: 780平米

David Chang評委的點評:風格定位為簡歐,但概念體現和定位風格完全不符。品味應該再做提升。

△客餐廳效果圖
參賽者檔案 江西 南昌 |星藝裝飾 余勁云 |樓盤名稱:香溢花城 | 面積: 158 平米

David Chang評委的點評:平面布局要更完善,尤其158平米的空間盡量讓空間方正,風格照片還需完善,要注意色彩的搭配,風格的統一。

△風格意向
賽事之初,組委會分別和評委溝通過,點評要真實、嚴格、發掘亮點。是的,十間坊實戰賽發布歷來勁爆,暴風驟雨般的痛批,下手狠點。這種參賽經歷會讓你不堪、憤怒,甚至打擊讓你意志低沉,但“是藥三分苦”。在此,我們需要警醒!如果你想做好設計,對得起自己的付出和業主的信任,評委和組委會的期待,就不要忽略全國實戰賽事的4輪PK賽制要求,竭盡所能在賽期咬牙突破,取得評委導師的真經,賽出自己的真實水平和成長潛能。我們歡迎,想要設計提升,有著真材實料,愿意挑戰不一樣的設計人生,十間坊是你實戰的不二選擇。
十間坊秉持成長突破第一、態度第二,設計素養和專業技能第三。我們堅信設計師做好自己,行業才有發展的可能!感謝芒果獎&十間坊評委、參賽設計師、媒體人賦予的正能量!十間坊參賽設計師,你們是最棒的,為你加油!










